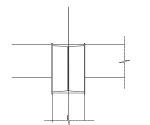
Birleşim Detayları Çizimi
Detay çizimlerinde sırasıyla;
Akslar çizilir.
Birleştirilecek elemanlar çizilir.
Birleştirmede levha gerekiyorsa gerekli levhalar çizilir.
Birleştirme elemanları çizilir.
Aşağıdaki şekillerde sık kullanılan birleştirme detaylarından örnekler verilmiştir.
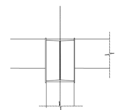
Birleşim Detayları Ölçülendirme
Ölçülendirmeler yapılırken sırasıyla;
Projede gösteriliş şekillerine göre birleştirme araçları çizilir.
Birleştirme araçlarının ölçüleri yazılır.
Birleştirilen parçaların ölçüleri yazılır.
Birleşim Detay Taramaları
Detay çizimi, ölçülendirmelerin yapılması ve yazıların yazılmasından sonra son olarak
gerekli taramalar tarama standartlarına göre yapılır.

